





KOMATSU PC200-5 / PC200LC-5 / PC220-5
คู่มือซ่อม KOMATSU รุ่น PC200-5 PC200LC-5 PC200LC-5 MIGHTY P220-5 PC220LC-5
รหัส KOM-11
KOMATSU รุ่น PC200-5 , PC200LC-5 รหัส KOM11
ข้อมูลทั้งหมด
ภาษา : อังกฤษ
รูปแบบ : CD เป็นไฟร์ PDF 662 หน้า
ประเภทเครื่องจักร : รถขุดขนาดกลาง (MEDIUM EXCAVATORS)
รหัสเครื่องยนต์ :
รหัสตัวถัง : PC200-5 , PC200LC-5 , PC200LC-5 MIGHTY , P220-5
เลขซีเรียลตัวถัง : 45001 ขึ้นไป , 58019 ขึ้นไป , 35001 ขึ้นไป
เนื้อหาด้านใน : 1.สเป็กและค่าเทคนิคต่างๆ
2.ระบบเครื่องยนต์และระบบระบายความร้อน
3.ช่วงล่างและเฟรม
4.ระบบไฮดรอลิก
5.รหัสวิเคาระห์ปัญหาและแนวทางแก้ไข
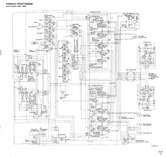
6.วงจรไฟฟ้าและวงจรระบบไฮดรอลิก







| หน้าที่เข้าชม | 2,258,234 ครั้ง |
| ผู้ชมทั้งหมด | 1,402,502 ครั้ง |
| เปิดร้าน | 17 ธ.ค. 2558 |
| ร้านค้าอัพเดท | 27 พ.ย. 2568 |

